-
注文住宅
木下工務店は理想の住まいを叶えるため
安心安全でデザイン性の高い完全自由設計の注文住宅をご提案致します。 -
分譲住宅・分譲地
木下工務店では創業より培った技術やノウハウを活かした
快適で暮らしやすい分譲住宅・分譲地をご提供致します。 -
土地活用
土地活用からアパート経営まで、
長期安定経営の資産づくりをサポート致します。 -
木下工務店の住宅展示場
木下工務店の住まいを体感できる住宅展示場では
住宅性能のご説明から家づくりの疑問まで木下工務店のスタッフが丁寧にお応え致します。
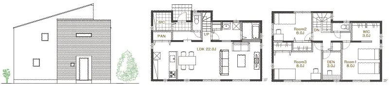
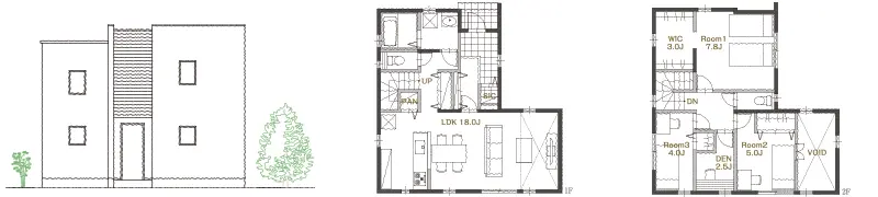
1000万円台からの高性能セミオーダー注文住宅『スマイテ』
笑顔の暮らしを職人の技がつくる
1000万円台からの高性能注文住宅
こだわりの家づくりを創業以来続けてきた木下工務店。
その歴史の中で培われたノウハウと、職人たちの確かな技を込めた住まいを建物面積に応じたシンプルな価格設定でご提供します。ベースプランとスタイルを選ぶだけの、わかりやすく楽しい家づくり。
ご家族の「Smile」を職人の「手」で。




